
产品概述
ZSPM型末端试水装置为内部集成化,多功能为一体的现场智能终端器件。具备现场测试水流指示器、报警阀、压力开关、水力警铃的动作是否正常;配水管道是否畅通;以及最不利点处的喷头工作压力是否正常等。将采集到的信号通过系统总线上传至系统主机,实现集中监控与操作。本产品由电动阀、压力传感器、控制及显示单元、手动控制单元、试水管件及保护罩等组成,采用数字化显示,操作与观察均十分方便。
本产品安装在每个报警阀的供水最不利点处,采用直流24V电源供电,安装简便。设备结构简单,功能全面,系统工作稳定。可广泛用于工厂、学校、医院、商场、宾馆、剧院、展厅、办公楼等各种场合。
型号说明

技术参数
型号规格 | 公称通径 | 工作电源 | 额定功率 | 额定压力 |
ZSPM-200/1.2-DXGA | DN25 | DN25 | 18w | 1.2MPa |
设备组成以及工作原理
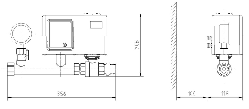
我司末端试水装置由管路组件、压力表组件、集成中央处理组件、阀门视镜组件、外壳组件、电动阀门组件、压力传感器、水流视镜构成。如下图(一)所示:

图(一)
自动末端试水装置安装于系统中最不利点。图(二)所示为末端箱工作原理。集成中央处理模块通过的压力传感器采集信号进行数据分析,显示到液晶屏并同时通过通讯总线和中继器发送给中央监控设备。中央监控设备收到数据进行整理分析,得出结论报告,同时根据分析后的数据情况再将操作指令通过通讯总线和中继器下达给试水装置。集成中央处理模块根据指令指导电动阀门作相应操作,模拟喷淋系统各保护区最不利处的喷头工作时,水流指示器、报警阀与压力开关的联动、复位性能。
图(二)
安装与维护
末端试水装置安装在每个报警阀的供水最不利点处,安装距离离地面为1.8米,产品可水平安装也可垂直安装;
为了以后维修方便末端试水装置侧面离墙壁距离不得小于10CM;
末端试水装置属于消防自动喷水灭火系统的检测装置,其保养计划的要求同等列入自动喷水灭火系统。

证书认证

![]()

四川智达创安科技有限公司
联系人:李先生
手机:18980618692
微信号:18980618692
地址:四川省成都市双流区东升街道棠中路一段38号